Save
Ask
Tour
Hide
$685,000
353 Days On Site
441 EAGLE MANOR DRIVECHURCH HILL, MD 21623
For Sale|Single Family Residence|Active
3
Beds
3
Total Baths
2
Full Baths
1
Partial Bath
3,505
SqFt
$195
/SqFt
County:
QUEEN ANNES
Listing courtesy of Chesapeake Real Estate Associates, LLC
Call Now: 1-410-251-5291
Is this the listing for you? We can help make it yours.
1-410-251-5291



Save
Ask
Tour
Hide
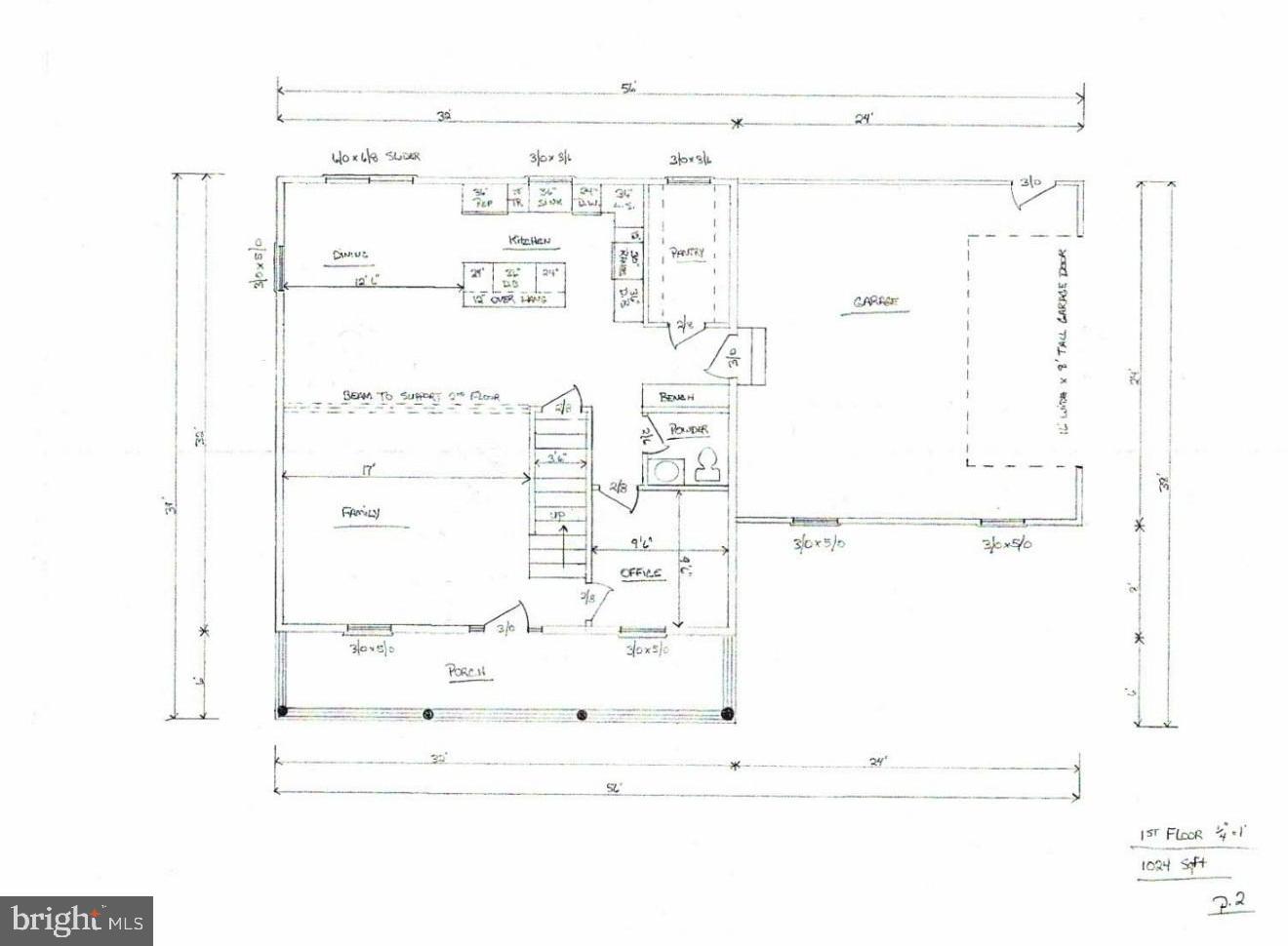
House in picture is to be built. This floor plan is a 3-bedroom 2.5 bath layout. Finished bonus room upstairs would make great home office or craft room. Unfinished basement for even more space. Upstairs has a separate laundry room with cabinets and countertop. Large pantry alongside the kitchen perfect for all your supplies and storage. Kitchen has been designed to take full advantage of the open space. Extra-large kitchen island. Backs to farmland with great views. Condor Manor lots are 1 acre each. Take a ride out there and see for yourself. This house is to be built. Approximately 2480 finished square feet. Unfinished basement approximately 1024 square feet. Buyer would need a construction loan. Buyer pays all docs/trans fees.
Save
Ask
Tour
Hide
Listing Snapshot
Price
$685,000
Days On Site
353 Days
Bedrooms
3
Inside Area (SqFt)
3,505 sqft
Total Baths
3
Full Baths
2
Partial Baths
1
Lot Size
1 Acre
Year Built
N/A
MLS® Number
MDQA2012074
Status
Active
Property Tax
$612
HOA/Condo/Coop Fees
$40 monthly
Sq Ft Source
Estimated
Friends & Family
Recent Activity
| 7 months ago | Price changed to $685,000 | |
| 7 months ago | Listing updated with changes from the MLS® | |
| 12 months ago | Listing first seen on site |
General Features
Acres
1
Attached Garage
Yes
Foundation
Other
Garage
Yes
Garage Spaces
2
Levels
Three Or More
Parking
Garage Door OpenerGarageDrivewayAttached
Parking Spaces
2
Pets
Dogs OKCats OKYes
Property Condition
New Construction
Property Sub Type
Single Family Residence
Security
Security Lights
Special Circumstances
Standard
SqFt Above
2481
SqFt Below
1024
SqFt Total
3505
Style
Contemporary
Water Source
Well
Zoning
AG
Interior Features
Appliances
CooktopDishwasherExhaust FanRefrigeratorStainless Steel Appliance(s)MicrowaveTankless Water Heater
Basement
Exterior EntryUnfinished
Cooling
Heat PumpCeiling Fan(s)Electric
Flooring
Laminate
Heating
Exhaust FanElectricPropaneHeat Pump
Interior
Ceiling Fan(s)Kitchen IslandPantryRecessed LightingWalk-In Closet(s)Open Floorplan
Save
Ask
Tour
Hide
Exterior Features
Construction Details
Vinyl Siding
Pool Features
None
Roof
Shingle
View
Panoramic
Waterview
Panoramic
Community Features
Association Dues
480
HOA Fee Frequency
Annually
School District
QUEEN ANNE'S COUNTY PUBLIC SCHOOLS
Schools
School District
QUEEN ANNE'S COUNTY PUBLIC SCHOOLS
Elementary School
Unknown
Middle School
Unknown
High School
Unknown
Listing courtesy of Chesapeake Real Estate Associates, LLC
The real estate listing information is provided by Bright MLS is for the consumer's personal, non-commercial use and may not be used for any purpose other than to identify prospective properties consumer may be interested in purchasing. Any information relating to real estate for sale or lease referenced on this web site comes from the Internet Data Exchange (IDX) program of the Bright MLS. This web site references real estate listing(s) held by a brokerage firm other than the broker and/or agent who owns this web site. The accuracy of all information is deemed reliable but not guaranteed and should be personally verified through personal inspection by and/or with the appropriate professionals. Properties in listings may have been sold or may no longer be available. The data contained herein is copyrighted by Bright MLS and is protected by all applicable copyright laws. Any unauthorized collection or dissemination of this information is in violation of copyright laws and is strictly prohibited. Copyright © 2020 Bright MLS. All rights reserved.
The real estate listing information is provided by Bright MLS is for the consumer's personal, non-commercial use and may not be used for any purpose other than to identify prospective properties consumer may be interested in purchasing. Any information relating to real estate for sale or lease referenced on this web site comes from the Internet Data Exchange (IDX) program of the Bright MLS. This web site references real estate listing(s) held by a brokerage firm other than the broker and/or agent who owns this web site. The accuracy of all information is deemed reliable but not guaranteed and should be personally verified through personal inspection by and/or with the appropriate professionals. Properties in listings may have been sold or may no longer be available. The data contained herein is copyrighted by Bright MLS and is protected by all applicable copyright laws. Any unauthorized collection or dissemination of this information is in violation of copyright laws and is strictly prohibited. Copyright © 2020 Bright MLS. All rights reserved.
Neighborhood & Commute
Source: Walkscore
Disclosure: Community information and market data powered by Constellation Data Labs. Information is deemed reliable but not guaranteed.
Save
Ask
Tour
Hide


Did you know? You can invite friends and family to your search. They can join your search, rate and discuss listings with you.