Save
Ask
Tour
Hide
$269,000
256 Days On Site
652 W GLENWOOD AVENUESMYRNA, DE 19977
For Sale|Land|Active
County:
KENT
Listing courtesy of RE/MAX Eagle Realty
Call Now: 1-410-251-5291
Is this the listing for you? We can help make it yours.
1-410-251-5291



Save
Ask
Tour
Hide
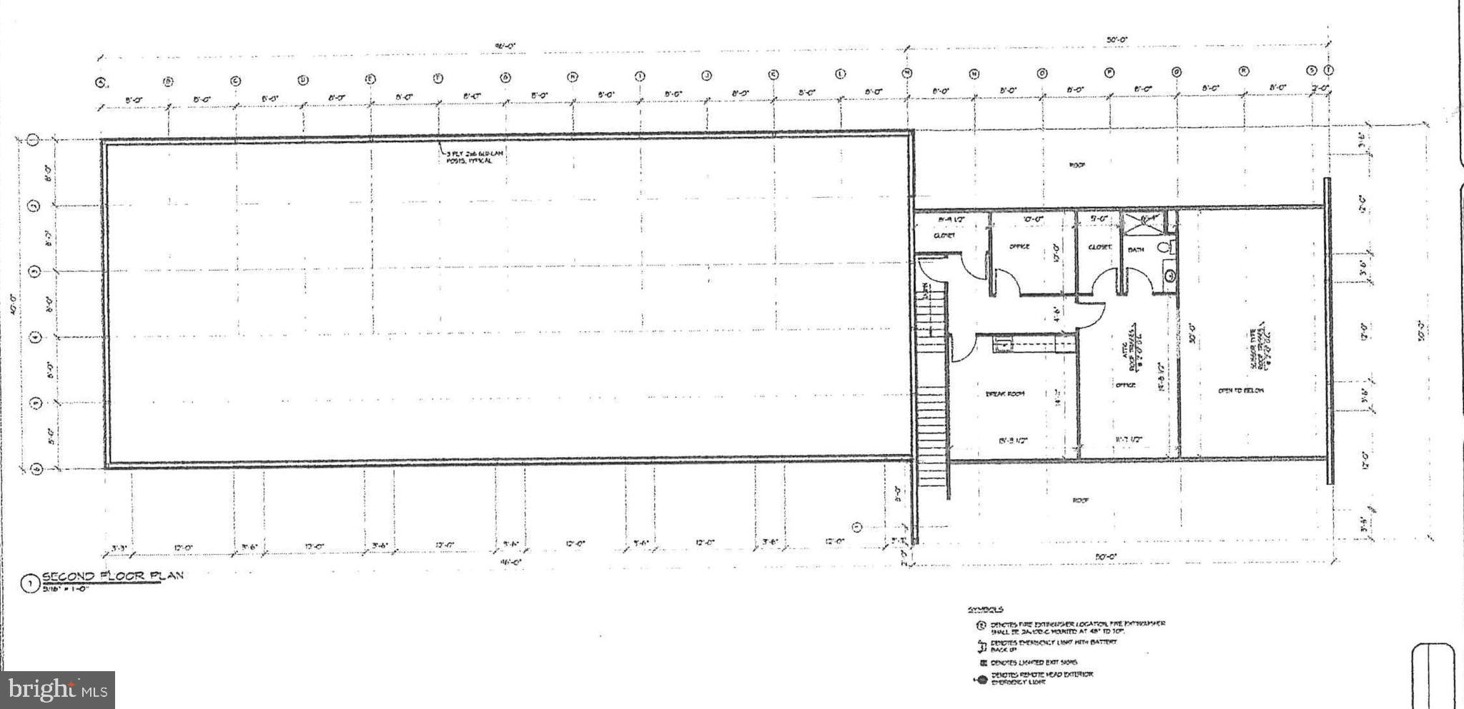
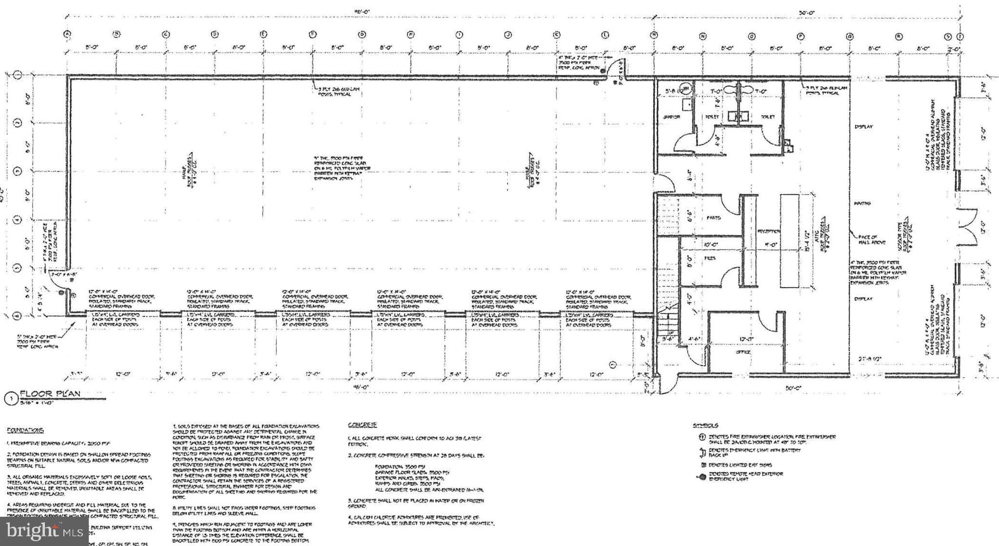
Automotive or similar business located on a busy road in growing Smyrna!!! Cleared land on Route 300, ready for your next business. Daily Traffic Count 11,074 AADT per DelDOT. Engineering Plans are already drawn up for a 6 bay automotive facility and were signed off on by the Town of Smyrna. Contact Listing Agent for more information.
Save
Ask
Tour
Hide
Listing Snapshot
Price
$269,000
Days On Site
256 Days
Bedrooms
N/A
Inside Area (SqFt)
N/A
Total Baths
N/A
Full Baths
N/A
Partial Baths
N/A
Lot Size
0.85 Acres
Year Built
N/A
MLS® Number
DEKT2034940
Status
Active
Property Tax
$809
HOA/Condo/Coop Fees
N/A
Sq Ft Source
N/A
Friends & Family
Recent Activity
| 3 months ago | Listing updated with changes from the MLS® | |
| 3 months ago | Price changed to $269,000 | |
| 8 months ago | Listing first seen on site |
General Features
Acres
0.85
Additional Property Use
Vacant
Sewer
Public Sewer
Special Circumstances
Standard
Water Source
Public
Zoning
RS1
Save
Ask
Tour
Hide
Community Features
MLS Area
Smyrna (30801)
School District
SMYRNA
Schools
School District
SMYRNA
Elementary School
Unknown
Middle School
Unknown
High School
Unknown
Listing courtesy of RE/MAX Eagle Realty
The real estate listing information is provided by Bright MLS is for the consumer's personal, non-commercial use and may not be used for any purpose other than to identify prospective properties consumer may be interested in purchasing. Any information relating to real estate for sale or lease referenced on this web site comes from the Internet Data Exchange (IDX) program of the Bright MLS. This web site references real estate listing(s) held by a brokerage firm other than the broker and/or agent who owns this web site. The accuracy of all information is deemed reliable but not guaranteed and should be personally verified through personal inspection by and/or with the appropriate professionals. Properties in listings may have been sold or may no longer be available. The data contained herein is copyrighted by Bright MLS and is protected by all applicable copyright laws. Any unauthorized collection or dissemination of this information is in violation of copyright laws and is strictly prohibited. Copyright © 2020 Bright MLS. All rights reserved.
The real estate listing information is provided by Bright MLS is for the consumer's personal, non-commercial use and may not be used for any purpose other than to identify prospective properties consumer may be interested in purchasing. Any information relating to real estate for sale or lease referenced on this web site comes from the Internet Data Exchange (IDX) program of the Bright MLS. This web site references real estate listing(s) held by a brokerage firm other than the broker and/or agent who owns this web site. The accuracy of all information is deemed reliable but not guaranteed and should be personally verified through personal inspection by and/or with the appropriate professionals. Properties in listings may have been sold or may no longer be available. The data contained herein is copyrighted by Bright MLS and is protected by all applicable copyright laws. Any unauthorized collection or dissemination of this information is in violation of copyright laws and is strictly prohibited. Copyright © 2020 Bright MLS. All rights reserved.
Neighborhood & Commute
Source: Walkscore
Disclosure: Community information and market data powered by Constellation Data Labs. Information is deemed reliable but not guaranteed.
Save
Ask
Tour
Hide


Did you know? You can invite friends and family to your search. They can join your search, rate and discuss listings with you.